Мембранные исполнительные механизмы для управления запорной и регулирующей арматурой.
Работоспособность при низких температурах до -65 С;
Возможность работы при давлении до 6 бар;
Нечувствительность и гестерезис менее 1%.
Мембранные пневматические исполнительные механизмы (приводы) предназначены для управления запорной и регулирующей трубопроводной арматурой.
Мы предлагаем мембранные исполнительные механизмы с диаметром заделки 125, 250, 320, 400, 500 мм с прямым (нормально открыт) и обратным (нормально закрыт) видом действия.
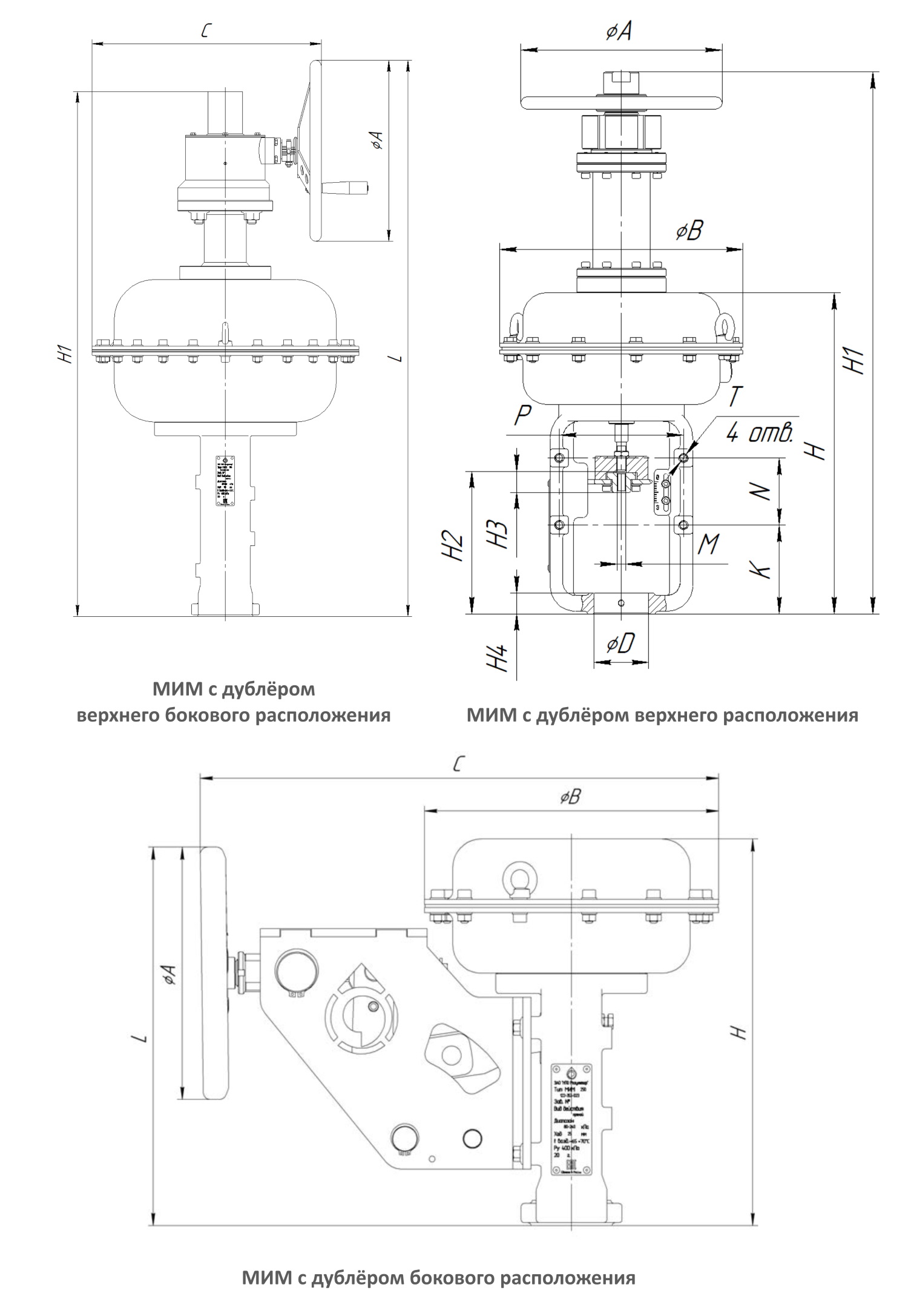
Вся линейка МИМ опциально оснащается ручными дублерами: МИМ 125 - верхнего расположения, МИМ 250, МИМ 320 - верхнего или бокового расположения, МИМ 400, МИМ 500 - верхнего расположения с редуктором и боковым штурвалом. Передаточное отношение редуктора удовлетворяет требованиям СТ ЦКБА 072-2009.
Мембраны МИМ изготавливаются из маслобензостойкой резины с односторонним армирование. Толщина мембраны минимальна для обеспечения её эластичности. Прочность мембраны обеспечивается при давлений до 6 бар. Диапазоны рабочих температур от -65 до +70 С. Нечувствительность МИМ не превышает 1%. Ход штока мембранных исполнительных механизмов максимален для каждого из размеров. При необходимости ход штока может быть уменьшен под потребности заказчика. Стойка МИМ литая из стали 20ГЛ, имеет отверстие под установку позиционера и других компонентов. Диаметр присоединительного отверстия для установки на арматуру может быть адаптирован под размер клапана заказчика. Все детали корпуса МИМ окрашиваются порошковой эмалью.
Ассортимент мембранных исполнительных механизмов не ограничивается стандартной линейкой. Под особые требования заказчиков проектируются и изготавливаются МИМ специального исполнения.
Кликните по таблице параметров для ее увеличения!
Заполните опросный лист и отправьте на почту - info@kipsystems.ru
















